We’ve submitted plans to Dartmoor National Park for major alterations to the Old School. Here’s what we’re proposing.
Ground Floor
The ground floor will be significantly improved to create a better entrance, easier circulation and better facilities, including:
- A new porch to provide a clearer entrance with better accessibility
- A new foyer linking the community centre with Art House and providing a warm welcome to the centre
- New kitchens and servery including an open kitchen for community use and a closed kitchen for events
- New seating areas with cafe-style seating in the foyer and covered outside seating under a new veranda
- Improved loos with natural light, better fittings and a new wet room
- A new Post Office counter to provide a formal home for the Post Office in South Brent
- Improved office space for The Old School and South Brent & District Caring
- Space for new facilities including a more accessible Community Fridge and potentially including a laundrette and post/parcel lockers
- Heating throughout bringing heating to all rooms for the first time
- Better circulation with the Aune Room linked directly to the new foyer






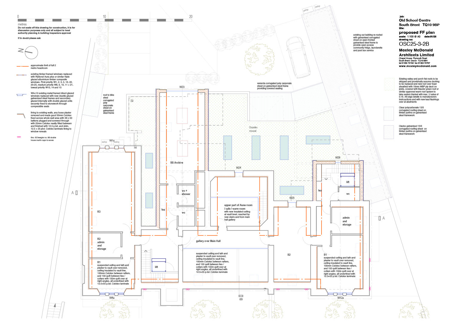
First Floor
Our bold proposals are to make use of the extensive space within the roof of the old school, and lower the high ceilings of the ground floor, to create a completely new floor of rooms.
We won’t need to make significant alterations to the fabric of the existing building, so the distinctive roofline won’t change much, but we’ll extend the floor out over some of the single-storey parts of the centre.
We expect to create about 360 square metres (3,900 square feet) of extra space within the building.
The first floor will be reached by stairs and lifts.
- A new archive room providing a larger home for the South Brent Archive
- New studio spaces for Art House and community use
- More storage space and extra administration offices
- New gallery area above the Main Hall
- Better insulation with high-performance materials between new ceilings and roof
- Extra facilities for refreshments and extra loos




Outside changes
We’re proposing to make a coherent ‘front’ for the east side of the centre, whilst maintaining the distinctive roofline facing Plymouth Road.
- An improved main entrance with new porch and additional folding doors into a new foyer
- Outdoor seating around the new entrance
- Improved access to Plymouth Road terrace with French windows to the main hall and a new door to Art House
- Solar panels on two sides which will be set flush with the roof to minimise impact
- Reduced car parking to make more room for pedestrians and outdoor meeting space












Our planning application
We’ve submitted an application to Dartmoor National Park for their consideration. You can view the full plans on their website by clicking here.
We’d love you to support our application, which you can do through the link above.



